$429,000 for Sale

615 s euclid, bay city, MI 48706

Property Description
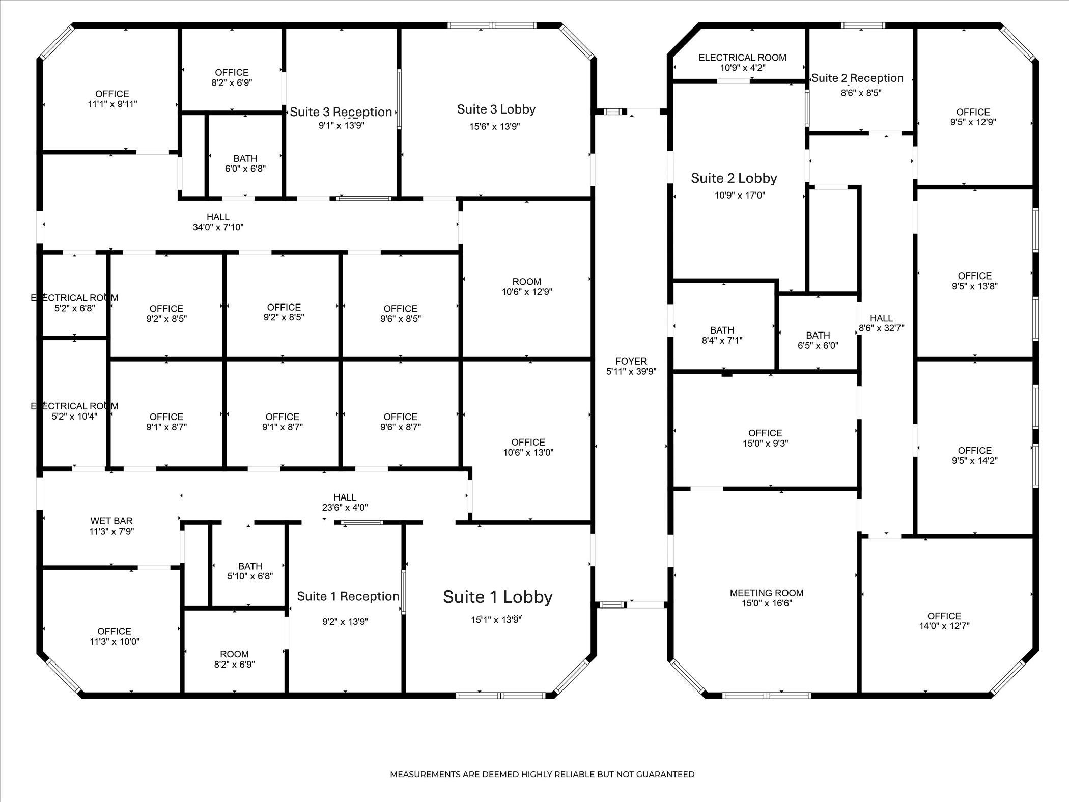
This remarkable office building has most recently been utilized in it's entirety by one business, however it's thoughtful design is to be used as 3separate office suites (appx 1430 sqft each), each with it's own lobby, reception area, break or records room, lavatory and mechanicals. Its perfect as an investment property, to grow your personal business in, or share space with other professionals! Offering over 4400 sqft, 20+/- individual spacious offices, break rooms, conference room, 4 lavatories, 20+ vehicle parking lot with multiple ingress & egress options, on nearly half an acre, this property is amazing! Situated on a prominent corner along Euclid Ave./M-13, you're sure to benefit from the heavy traffic count, and proximity to US 10, I-75, and vibrant downtown Bay City!
General Information
Sale Price: $429,000
Price/SqFt: $97
Status: Active
MLS#: 50198309
City: bay city
Post Office: bay city
County: Bay
Acres: 0.46
Lot Dim: 149X148
Size: 4,444 sq.ft.
Acreage: 0.46 est.
Year Built: 1983
Property Type: Commercial/Industrial
Tax, Fees & Legal
Est. Summer Taxes:  $2,025
Est. Winter Taxes:  $2,025


Listing Courtesy of: Shelley Niedzwiecki of Ayre/Rhinehart Bay

Information provided by Midland Board of REALTORS® ©2026
Listing information provided courtesy of the Midland Board of REALTORS. IDX information is provided exclusively for consumers' personal, non-commercial use, and it may not be used for any purpose other than to identify prospective properties consumers may be interested in purchasing. The data is deemed reliable, but is not guaranteed accurate by the MLS.

This listing last updated: Fri, February 13, 2026 at 12:17:13 PM EST

MBOR Listing Data Last Updated on Wed, March 4 2026 at 1:48am
Share this property
Listings presented by:
Ayre/Rhinehart Bay
Call: (989) 892-4800

Ask about this property